First Floor Plan
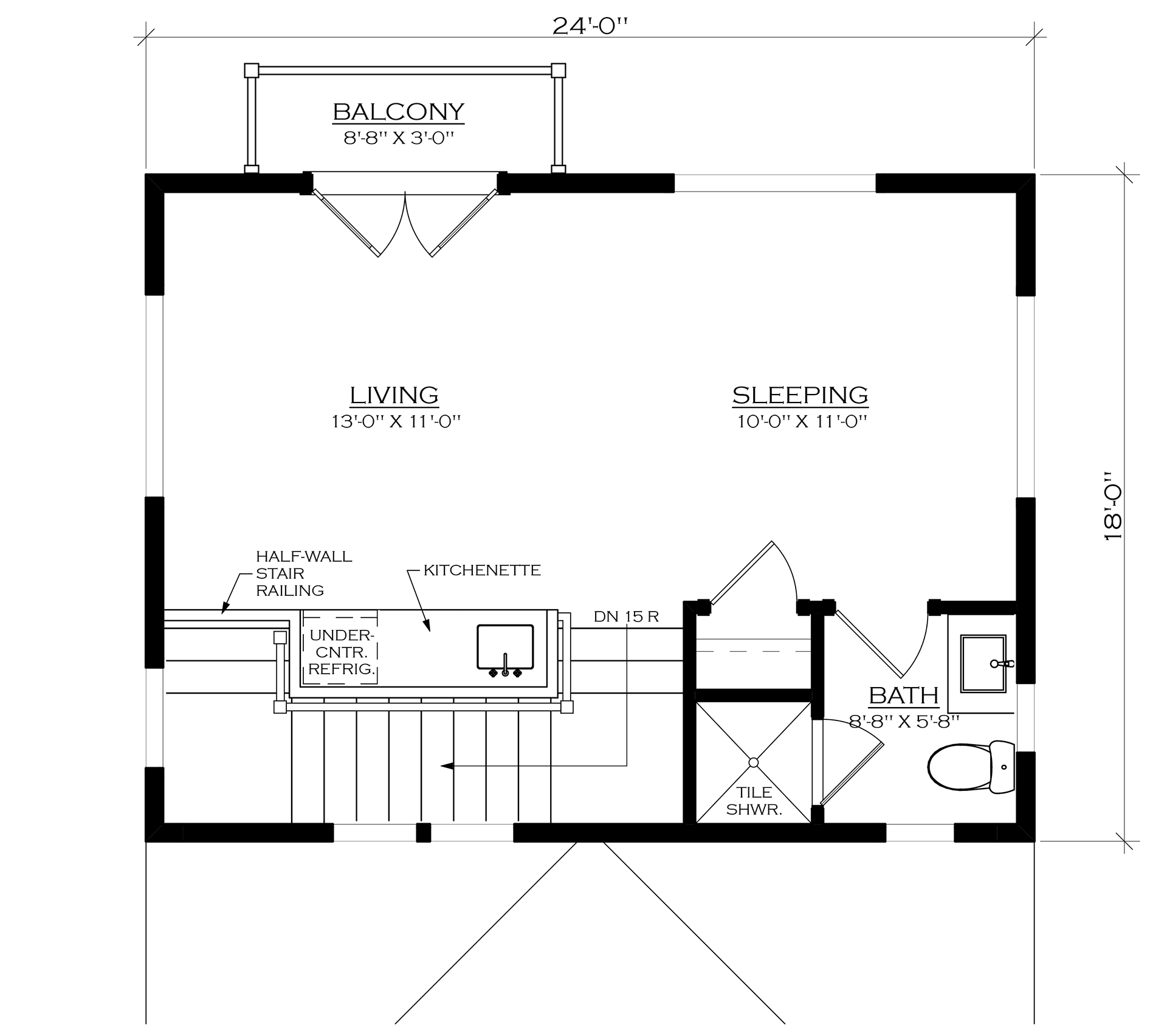
Second Floor Plan
This pre-designed outbuilding plan can be constructed as-is or modified to meet any personal need or site constraint.
A finished pre-designed catalog plan contains all of the necessary information needed for home construction (excluding engineering). The price of catalog plans depend on size and use, please inquire for current rates.
Back to Top